
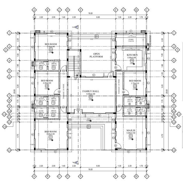
Expert Building Plan Design & Structural Engineering
Get permit-ready blueprints designed for safety, local compliance, and efficiency. We turn your concepts into technical reality.

Modern Architecture, Timeless Design
We don’t just build structures; we create landmarks. Elevate your lifestyle with innovative architectural solutions tailored to your unique needs.

Luxury Interiors Crafted For You
Transform your interior into a masterpiece. We specialize in functional luxury, high-end finishes, and modern interior architecture.
F.S.Infrastructure is led by Er. Farez Ahmed Gazi, delivering modern, functional, and high-value designs for residential and commercial projects.
__________ Appreciation __________

TRUSTED BY INDIAN ARMY
Precision. Discipline. Excellence. Receiving a formal Letter of Appreciation from the 17 Engineer Regiment is a testament to our unwavering commitment to quality.
Why this matters for your project:
Military-Grade Accuracy: Our 3D visualizations for the Children School at Panagarh Military Station met the highest standards of functional and aesthetic design.
Proven Reliability: Being vetted and appreciated by the Indian Army means your project is handled with the utmost professional integrity and technical expertise.
Timely Execution: We pride ourselves on meeting strict deadlines and rigorous requirements, as recognized by Lt Col Savit Anand Padhi.
TESTIMONIALS

Adv. S. Zamadar
Best place to get your home designed by professional architect, overwhelmed by their practical and aesthetic design for our beautiful home

Deepshikha Barbhuiya
This team led by Mr Farez is aware what perfection means. They understand what commitment to work, time limit and the client means. Worked on a 3d visualization of a project on Children School with this firm. Extremely satisfied with the delivery of product in such a short time. Kudos Team Farez. Keep it up and All the best!Positive professionalism

S.S. Engineering
Seriously I’m spellbound about this guy and his Designing accuracy . He designed my flat and Recently Designed my Company Office ( S S Engineering Services Pvt. Ltd. ) In a very high end concept with full space utilitization . He’s doing a great job with his knowledge and perfection.

Mr. A. Rahman
Thank you for the offer. And what you've designed amazingly for our home specially the Stairs ! Every single person is overwhelmed with that.. You're Amazing and your designs are really so practical and Aesthetic.

Ms. Sayma B.
Got all in one solution for my home from building plan to interior design, exterior design, best interior designer in Kolkata
Behaviour, knowledge, designing idea everything was very impressive.




